【アーバネックス森下3】の賃貸相場
駅チカ・人気の物件
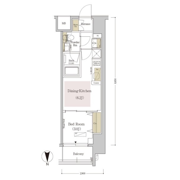
| 間取り図 | 階数 | 間取り | 面積 | 賃料 | 管理費 | 敷金 | 礼金 | 仲介料 | お気に入り | お問合わせ |
|---|---|---|---|---|---|---|---|---|---|---|
| 9階 | 1DK | 25.21m2 | 13.7万円 | 1.0万円 | 1.0ヶ月 | 0.0ヶ月 | 0.0ヶ月 |
|
お問合わせ |
Outline 建物概要
| 住所 | 東京都江東区新大橋2-6-4 Map | ||
| 交通 |
都営大江戸線『森下駅』徒歩2分 都営新宿線『森下駅』徒歩2分 都営新宿線『浜町駅』徒歩10分 東京メトロ半蔵門線『清澄白河駅』徒歩12分 都営大江戸線『清澄白河駅』徒歩12分 |
||
| 築年月 | 2019年12月 | 総戸数 | 51戸 |
| 階建 | 11階建 | 種別/構造 | RC(鉄筋コンクリート) |
| 賃料相場 | 137,000円 | 共益費/管理費 | 10,000円 |
| 間取り | 1DK | 専有面積 | 25.08m2 ~ 25.30m2 |
| 特長 | |||
| 設備など | |||
| 備考 |
※掲載されている物件がご成約している場合もございますのでご了承くださいませ。 ※掲載詳細と現状に相違があった場合、弊社の最新の情報を優先させていただきます。 ※上記の物件・お部屋情報以外にも空き部屋・空き予定のお部屋もございますので、お電話かメールにてお問い合わせください。 ※ペット飼育やSOHO利用の可否に関しましては、建物の管理規約で可能になっていても、お部屋毎の所有者様によって、禁止の場合もございますのでご注意ください。 ※駐車場、バイク置場、駐輪場の詳しい空き状況については弊社スタッフお問い合わせください。 ※その他気になる点がございましたら、お気軽に弊社までお問い合わせください。 |
||
| URL | 「アーバネックス森下3」の詳細はこちら | ||
| 関連リンク |
「東京都江東区」エリアの物件 都営大江戸線「森下駅」の賃貸物件 |
||
アーバネックス森下3
『アーバネックス森下3』は住所(東京都江東区新大橋2-6-4) 2019年12月築の高級分譲マンションです。
最寄りの駅は森下駅になります。
04月23日現在、空室が1室となっております。
分譲マンション『アーバネックス森下3』の賃貸管理なら株式会社エクセレントにお任せください!
滞納保証・設備保証・原状回復保証付きに加え、
東京都江東区エリアの高級分譲マンションの賃貸実績が豊富で、客付けから管理までオーナー様に必ず満足いただけます。
この『アーバネックス森下3』なら、月額家賃137,000円で賃貸に出すことが可能です!
『アーバネックス森下3』の賃貸管理に関する、ご質問・ご相談なら
株式会社エクセレント(屋号:エクセレント新宿店)までご連絡くださいませ。
-----お客様お問い合わせ先------------------
■お客様専用番号: 0120-954-899
■メール: shinjuku@excerent.jp
■アクセス: JR各線『新宿駅』から徒歩2分
どうぞお気軽にお問い合わせください。
※地図上に表示される物件のアイコンは付近住所に所在することを表すものであり、実際の物件所在地とは異なる場合がございます。
-
更新 04/22
- パークフラッツ日本橋馬喰町
- 空室:4 部屋
- 面積:45.36m2〜58.28m2
JR総武本線
『馬喰町駅』徒歩4分
間取り:1R〜2LDK
相場:22.6万円 〜25.3万円
-
更新 04/21
- アスプライム八丁堀
- 空室:3 部屋
- 面積:40.00m2〜50.02m2
東京メトロ日比谷線
『八丁堀駅』徒歩4分
間取り:1R〜2LDK
相場:30.0万円 〜30.8万円
-
更新 04/21
- パークタワー晴海
- 空室:1 部屋
- 面積:42.57m2〜7079.00m2
東京メトロ有楽町線
『月島駅』徒歩12分
間取り:1LDK〜3LDK
相場:28.0万円 〜
-
更新 04/21
- クレヴィア日本橋
- 空室:1 部屋
- 面積:38.20m2〜38.22m2
東京メトロ半蔵門線
『水天宮前駅』徒歩3分
間取り:1LDK〜2LDK
相場:23.3万円 〜
-
更新 04/22
- MFPRコート日本橋馬喰町
- 空室:3 部屋
- 面積:25.59m2〜52.73m2
都営新宿線
『馬喰横山駅』徒歩2分
間取り:1R〜3DK
相場:24.9万円 〜27.2万円
-
更新 04/22
- リバーレ月島
- 空室:1 部屋
- 面積:19.64m2〜39.84m2
東京メトロ有楽町線
『月島駅』徒歩3分
間取り:1R〜1LDK
相場:13.8万円 〜
-
更新 04/22
- コートラクリア人形町
- 空室:1 部屋
- 面積:32.78m2〜41.86m2
都営浅草線
『人形町駅』徒歩2分
間取り:1DK〜1LDK
相場:21.7万円 〜
-
更新 04/22
- ログ勝どき
- 空室:1 部屋
- 面積:25.29m2〜43.14m2
都営大江戸線
『勝どき駅』徒歩6分
間取り:1R〜1LDK
相場:1.3万円 〜
-
更新 04/22
- MFPRコート日本橋馬喰町
- 空室:3 部屋
- 面積:25.59m2〜52.73m2
都営新宿線
『馬喰横山駅』徒歩2分
間取り:1R〜3DK
相場:24.9万円 〜27.2万円
-
更新 04/22
- リバーレ月島
- 空室:1 部屋
- 面積:19.64m2〜39.84m2
東京メトロ有楽町線
『月島駅』徒歩3分
間取り:1R〜1LDK
相場:13.8万円 〜
-
更新 04/22
- コートラクリア人形町
- 空室:1 部屋
- 面積:32.78m2〜41.86m2
都営浅草線
『人形町駅』徒歩2分
間取り:1DK〜1LDK
相場:21.7万円 〜
-
更新 04/22
- ログ勝どき
- 空室:1 部屋
- 面積:25.29m2〜43.14m2
都営大江戸線
『勝どき駅』徒歩6分
間取り:1R〜1LDK
相場:1.3万円 〜
-
更新 04/22
- オープンレジデンシア表参道エスト
- 空室:1 部屋
- 面積:70.58m2
東京メトロ千代田線
『乃木坂駅』徒歩9分
間取り:2LDK
相場:43.8万円 〜
-
更新 04/20
- KDXレジデンス高輪
- 空室:2 部屋
- 面積:37.33m2〜40.80m2
都営浅草線
『高輪台駅』徒歩6分
間取り:1LDK
相場:17.1万円 〜19.5万円
-
更新 04/20
- クレストコート白金高輪
- 空室:3 部屋
- 面積:25.72m2〜62.37m2
東京メトロ南北線
『白金高輪駅』徒歩5分
間取り:1K〜2LDK
相場:20.9万円 〜38.1万円
-
更新 04/18
- カナルフロント芝浦
- 空室:3 部屋
- 面積:25.00m2〜52.19m2
ゆりかもめ
『日の出駅』徒歩5分
間取り:1R〜1LDK
相場:15.2万円 〜18.5万円
湾岸レント
営業時間:10:00~19:00
定休日:年中無休
-
更新 04/22
- MFPRコート日本橋馬喰町
- 空室:3 部屋
- 面積:25.59m2〜52.73m2
都営新宿線
『馬喰横山駅』徒歩2分
間取り:1R〜3DK
相場:24.9万円 〜27.2万円
-
更新 04/22
- リバーレ月島
- 空室:1 部屋
- 面積:19.64m2〜39.84m2
東京メトロ有楽町線
『月島駅』徒歩3分
間取り:1R〜1LDK
相場:13.8万円 〜
-
更新 04/22
- コートラクリア人形町
- 空室:1 部屋
- 面積:32.78m2〜41.86m2
都営浅草線
『人形町駅』徒歩2分
間取り:1DK〜1LDK
相場:21.7万円 〜
担当者:羽田
担当の羽田です!こちらの ”アーバネックス森下3” の賃貸管理・客付けをご検討中のオーナー様。高級分譲マンションを専門の管理会社「エクセレント銀座店」にお任せください! 「アーバネックス森下3」の無料査定・無料ご相談は、最短3時間でご回答いたします。
0120−954−899(10時〜19時)
まで、お気軽にお問い合わせください!